天津装修网

0371-58610011

装饰公司

  • 装饰公司
  • 家居建材
  • 设计师
  • 工长工人
  • 效果图
  • 搜文章
  • 搜产品
  • 搜视频

二手改造的190㎡3室2厅2卫完工 我的美式梦

发布日期:2017-06-30

【户型】3室2厅2卫

【建筑面积】190㎡  

【使用面积】150㎡

【装修类型】二手改造

【装修风格】美式

【包工方式】半包

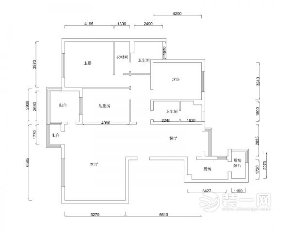
1.装修前

二手改造的190㎡3室2厅2卫完工

简单介绍几句户型,这套房子的一个优点,基本没有浪费面积,金角,唯一遗憾客厅过大造成厨房有点小

2.完工

二手改造的190㎡3室2厅2卫完工

一进门是个小门厅,右边的鞋柜是实木,价格很美貌

二手改造的190㎡3室2厅2卫完工

进门左手下两步台阶是客厅,面积比较大,花了些心思

二手改造的190㎡3室2厅2卫完工

电视柜近照,电视是曲面的,壁纸个人很喜欢

二手改造的190㎡3室2厅2卫完工

电视柜近照,很漂亮,很有质感

二手改造的190㎡3室2厅2卫完工

电视墙对面,投入巨资打了一面实木展示柜,美式沙发也很喜欢

二手改造的190㎡3室2厅2卫完工

正面角度,地毯是地摊货

二手改造的190㎡3室2厅2卫完工

进门右手是餐厅位置,整个大厅满铺的鹅黄色复古壁纸

二手改造的190㎡3室2厅2卫完工

餐厅位置相对于客厅不算大,摆不开餐边柜,有点遗憾

二手改造的190㎡3室2厅2卫完工

餐桌细节

二手改造的190㎡3室2厅2卫完工

阳光房,金角的房子,这是一早的阳光,很不错

二手改造的190㎡3室2厅2卫完工

再来一张,阳光房可以看到小区里的人工湖,风景一流

上述内容为转载或编者观点,不代表装一网意见,不承担任何法律责任。如侵权请联系删除。
如何挑选装修公司,大数据来帮你!

免费设计在线报价

结合当地市场,大数据实时分析计算

手机版

小程序

公众号